Wednesday - 17 Dec 2025

East-Facing 2-Story Independent House in VR Sun City, ,Kannurahalli Road. Hoskote, Bangalore

East-Facing 2-Story Independent House in VR Sun City, ,Kannurahalli Road. Hoskote, Bangalore

Hoskote

₹ 15500000

description

Spacious EAST Facing Two Floors Independent House for Sale in VR Sun City, Kannurahalli Road, Opp Milana Function Hall,  HOSKOTE, Bangalore! (This is a BMRDA & RERA Approved Residential Layout.

Welcome to your dream home in the serene and well-planned VR Sun City Residential Layout, located on Kannurahalli Road, Hoskote. This beautiful EAST-facing independent house is thoughtfully designed with G+1 floors, built on a 1255 sq. ft. site/plot, with a total built-up area of 2400 sq. ft. Construction structure is done for G+5 Floors. You can build an additional 4 more floors in later years (i.e. G+5 Floors). This independent House is built in a BMRDA and RERA approved Residential Layout. This is Spacious & Functional Residential Layout with cement wide roads within yout. This residential layout is occupied with independent houses.

Thoughtful Independent House (G + 1 Floors):

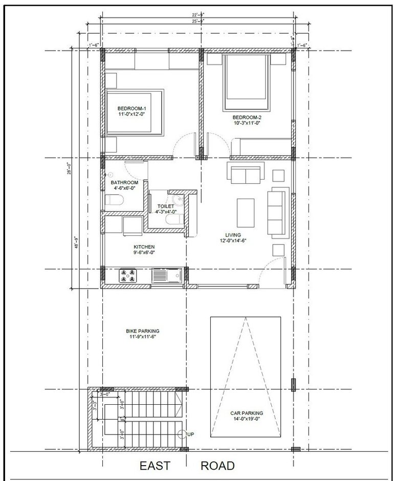
    • Ground Floor: 2 bedrooms, 2 restrooms, spacious living hall, and a wide kitchen.
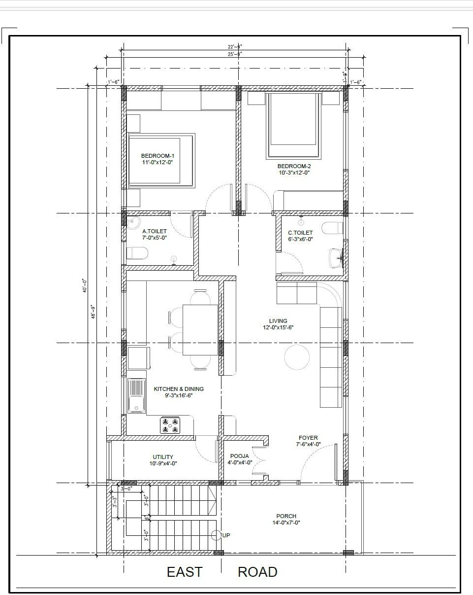
    • First Floor: 2 bedrooms, 2 bathrooms, spacious living hall, dining hall, wide kitchen, and utility room.
    • Total House Build up area is : 2400 sq fts.(G + First floors together)

Ground Floor House has 2 Bedrooms, 2 Restrooms, spacious living hall and a kitchen
First Floor House – First floor features spacious 2 bedrooms, 2 bathrooms, dining hall, a spacious living hall, a wide kitchen, and a utility room.

BMRDA & RERA Approved Layout – Hassle-free documentation & home loan eligibility from all major banks. (SBI & HDFC Banks has already approved this layout.

Vastu Compliant – Designed for positive energy, comfort, and harmony.

Ample Water Supply & Storage Capacity: This Independent house has Borewell with ample water and also has Municipal Water line connection  to ensure continuous water supply for multiple families. Additionally, there is 9500 liters volume sump is available  to store water.

Secured Compound Wall: It has secured 6 feet compound wall and all four sides of this independent house
Rental Income Potential – Both Ground Floor and First floor houses, can generate an assured rental income of ₹25K-₹27K per month.

Continuous BESCOM Power supply:  Both Ground Floor and First floor houses has separate BESCOM meter connections and additional connection meter for Borewell .

Ample Parking Space: You can park TWO Cars and 2-3 motor bikes (Or) One sedan Car and another 6-7 motor bikes in this spacious parking area.
Gated Community – A peaceful and well-maintained neighborhood with a decent, friendly community already residing.
Prime Location – Close to schools, colleges, major banks, commercial shops, and the main market for ultimate convenience.
Excellent Connectivity – Well-connected to key areas of Bangalore, offering a balance of urban convenience and suburban tranquility.

All Banks can fund home loans for this House as per your eligibility (SBI & HDFC Banks has already approved this layout.

Experience luxurious and peaceful living in this Independent House built in a Wonderful gated community, surrounded by lush green nature  Don’t miss this incredible opportunity—schedule your visit today! ????????..

Call or WhatsApp me on +91 9902016509 or +91 9480350514 to discuss more details about this independent house.

Thanks & Regards

Sai Muralidhar

Cell # 9902016509

read more
property details
  • Property: Apartments
  • Price: ₹ 15500000
  • Property Size: 2400 Sq Ft
  • Bedrooms: 4
  • Bathrooms: 4
  • Property Status:For sale
  • Property Facing: East
  • City: Bengaluru
  • Area: VR Sun City Layout, Kannurahalli Road, Hoskote
  • Property Type: Full Family Home
features
  • Car Parking
  • Play Area
  • Pets Allow
  • Alarm
  • Window Covering
  • WiFi
what's nearby
education
  • Eqube

    1 km

health & medical
  • Many

    1 km

Railway Station
  • Kr puram

    10

Bus Stand
  • Hoskote

    1

similiar properties